01 Product Description
The Horizon S Series Linked Single Axis Solar Tracking System is designed to maximize energy production by continuously aligning solar panels with the sun’s path throughout the day. Engineered for large-scale solar power plants and commercial installations, this system combines high capacity, intelligent tracking, and robust construction to deliver superior performance across diverse terrains and weather conditions.
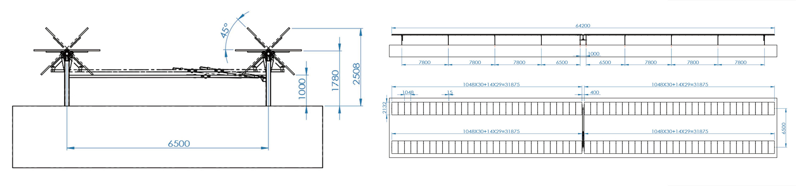
Featuring an innovative linked design, every two trackers support up to 120 modules (four strings), optimizing space utilization and reducing balance-of-system costs. The tracker is compatible with 182mm/210mm cell solar modules and operates efficiently under 1000V/1500V system configurations. Its smart tracking technology adjusts the tilt angle within a range of ±50° based on real-time terrain and weather data, ensuring optimal energy harvest.
Built to withstand extreme environments, the system incorporates dampers to minimize resonance and enhance stability, while its exclusive structural design and rigorous wind tunnel testing allow it to withstand wind speeds up to 45 m/s. Constructed with hot-dip galvanized or Zn-Al-Mg coated steel (mean coating thickness ≥65μm), it offers superior corrosion resistance and long-term durability. The system supports multiple foundation types, including PHC, cast-in-place, and steel pile, providing flexibility for varied project sites.

02 Accessory schematic diagram

03 Product Components

04 Core Engineering Parameters
| Parameter details | |
| Tracking Technology | Tracking Technology |
| System Voltage | 1000V/1500V |
| Tracking Range | ±50° |
| Working Wind Speed | 18 m/s (Customizable) |
| Max. Wind Speed | 45m/s (ASCE7-10) |
| Max. Wind Speed | <120 Modules (Customizable) |
| Principal Materials | Hot-Dip Galvanized Q235B/Q355B, Zn-Al-Mg Coated Steel |
| Mean Coating Thickness | ≥65 micron |
| Drive System | Linear Actuator |
| Foundation type | PHC / Cast-in-Place Pile / Steel Pile |
05 Industry Application Scenarios
✔ Deserts and marginal lands: Applicable systems: Single-axis and dual-axis tracking systems
✔ Slopes and undulating terrain: Applicable systems: Inclined single-axis/adaptive dual-axis systems
✔ Rooftop photovoltaic and community power supply: Applicable systems: Light-duty flat single-axle/small-sized dual-axle systems
06 Professional technical services
▶ Solution design and structural analysis:
Provide customized solution drawing, load calculation reports (including wind load/snow load/seismic force analysis) or assembly drawing.
▶ On-site survey:
Engineers conduct on-site investigations ground conditions with local soil investigation professionals.
▶ Installation training and guidance:
Provide installation videos, installation manuals and on-site installation guidance to ensure safe and complete installation.
07 Technical verification system
Provide standardized installation videos, operation manuals and on-site technical guidance to ensure zero error in construction.
07 Technical verification system
▶ Extreme environmental testing
• Pass the low-temperature impact at -40℃
• Salt spray corrosion (3,000 + hours)
• Extreme tests such as 60m/s hurricane simulation.
▶ Third-party certification
• We hold wind pressure, snow pressure, seismic resistance and material certification certificates issued by TUV, SGS and other institutions to ensure the compliance of global projects.
08 Packages & Shipping
International standard packaging; Goods are dispatched from Shanghai, Ningbo, Tianjin, Xiamen and Shenzhen ports in China.

09 Project Case


leave a message
Scan to wechat :